- ΑΡΧΙΚΗ
- ΠΡΟΪΟΝΤΑ
- ΚΟΥΦΩΜΑΤΑ
- ΚΟΥΦΩΜΑΤΑ ΑΛΟΥΜΙΝΙΟΥ
- SCHUCO
- ΑΝΟΙΓΟΜΕΝΑ
- SCHÜCO AWS 75 SI
SCHÜCO AWS 75 SI
DIGALAKIS A.
SCHÜCO AWS 75 SI
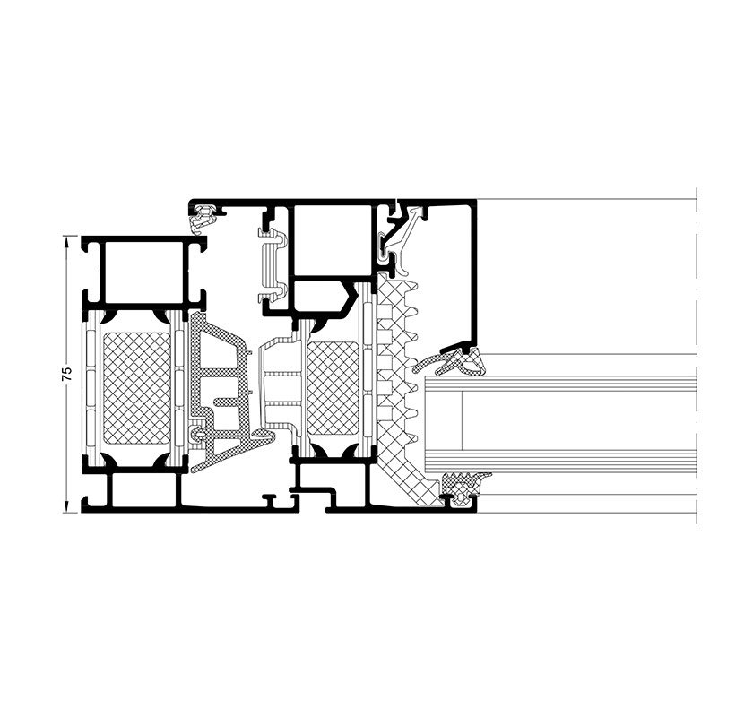
Θερμοδιακοπτόμενο κούφωμα παραθύρων υψηλής θερμομόνωσης, με συνολικό πλάτος όψης 107 mm.
Η διευρυμένη ζώνη θερμομόνωσης, με τους ειδικά διαμορφωμένους θαλάμους θερμοδιακοπής, με αφρώδες υλικό, προσφέρουν υψηλή ενεργειακή εξοικονόμηση, αποτρέποντας τις απώλειες. Το ενεργειακό προφίλ του κουφώματος συμπληρώνεται από τις κορυφαίες επιδόσεις στεγανότητας, με υψηλή ανθεκτικότητα σε ανεμοπίεση, ανεμοδιαπερατότητα και υδατοδιαπερατότητα.
TEXNIKA ΧΑΡΑΚΤΗΡΙΣΤΙΚΑ
Διαστάσεις:
Βάθος προφίλ κάσας: 75 mm
Πλάτος όψης κάσας: 59 mm
Μέγιστο πάχος υάλωσης: κάσα 18-52 mm - στο φύλλο 18-61 mm
Βάθος προφίλ φύλλου: 85 mm
Πλάτος όψης φύλλου: 78 mm
Δυνατότητα τριπλού υαλοπίνακα
Δυνατότητα ενσωμάτωσης Schüco TipTronic.
Μηχανισμός: Εφαρμογή μηχανισμού SCHÜCO SimplySmart και κατηγορία basic security
Διευρυμένη ζώνη θερμομόνωσης με θερμοδιακοπές και αφρώδες υλικό στους θαλάμους
Λάστιχα στεγάνωσης από EPDM
Τα προφίλ έχουν ίσια μορφή
Ομάδες φόρτισης κατά DIN EN 12207/12208/12210
Θερμομόνωση: εως Uf 0,92 W/m2K κατά DIN EN ISO 10077-2
Ηχομόνωση μέχρι Rw=48dB κατά DIN EN ISO 140-3
Αντιδιαρρηκτική προστασία μέχρι RC3 σύμφωνα με DIN V ENV 1627
Ανεμοδιαπερατότητα κατά DIN EN 12207 Κατηγορία: 4
Υδατοδιαπερατότητα κατά DIN EN 12208 Κατηγορία: 9a
Ανθεκτικότητα σε ανεμοπίεση κατά DIN EN 12210: Κατηγορία: C5 / B5
Μηχανική αντοχή κατά DIN EN 13115 Κατηγορία: 4
Λειτουργικότητα στον χρόνο κατά DIN EN 12400 Κατηγορία: 3
SCHÜCO AWS 90SI
Κλείστε Ραντεβού