- HOME
- PRODUCTS
- WINDOWS AND DOORS
- ALUMINUM FRAMES
- SCHUCO
- LIFTING - SLIDING
- Schüco ASS 50
Schüco ASS 50
DIGALAKIS A.
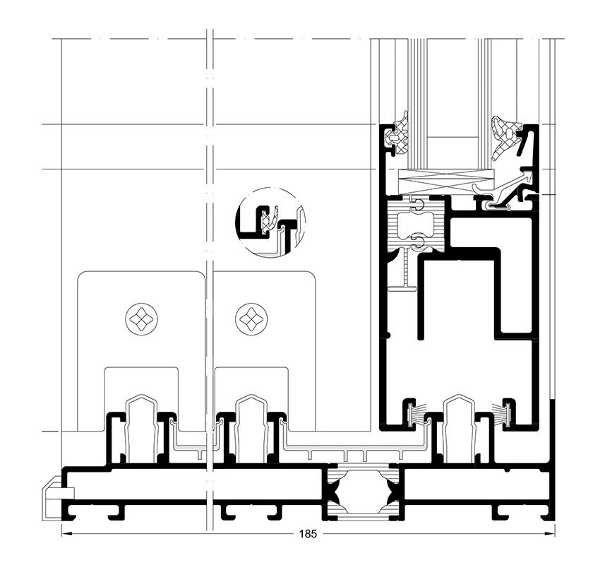
Schüco ASS 50
Thermal break lift/sliding system, with total face width 112mm, with sheet 150kg, and sheet 300kg with face width 124mm.
A flexible solution offering many configuration options, such as double, triple or quadruple guide rail and INOX rolling.
TECHNICAL CHARACTERISTICS
Dimensions:
Frame profile depth: 120 mm
Frame face width: 38 mm
Maximum glass thickness: 8-32 mm
Sheet profile depth: 50 mm
Sheet face width: 84mm at 150kg - 96mm at 300kg
Mechanism: 150kg or 300kg mechanism with option for 400kg lifting mechanism
EPDM sealing gaskets
Profiles have straight form
Thin-section frame to perimeter frame
Many configuration options, choice among single, double or tripe guide rail and inox rolling
Charge groups in accordance with DIN EN 12207/12208/12210
SCHÜCO ASS 70 HI
Book an Appointment