- HOME
- PRODUCTS
- WINDOWS AND DOORS
- ALUMINUM FRAMES
- SCHUCO
- SLIDING
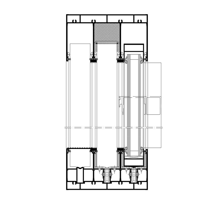
- SCHÜCO ASS 39 PD.NI
SCHÜCO ASS 39 PD.NI
DIGALAKIS A.
SCHÜCO ASS 39 PD.NI
Sliding French door system with zero face width.
A flexible solution with many configuration options, such as with a double or triple guide rail.
TECHNICAL CHARACTERISTICS
Dimensions:
Frame profile depth: Double guide rail of 107 mm Triple guide rail of 160mm mm
Frame face width: bottom 80 mm, right-left 55 mm, top 92 mm mm
Maximum glass thickness: 32 mm
Mechanism: SCHÜCO with max. weight 300kg/sheet
Profiles have straight form
Opening 90° corner option.
Manufacturing capability of up to 3.5 meters high
Soundproofing up to Rw=33 in accordance with DIN EN ISO 140-3
Burglar resistance up to RC1
Air permeability in accordance with DIN EN 12207 Class: 3
Water permeability in accordance with DIN EN 12208 Class: 7Α
Wind pressure resistance in accordance with DIN EN 12210: Class: C2/B2
Mechanical strength in accordance with DIN EN 13115 Class: 1
Functionality over time in accordance with DIN EN 12400 Class: 3
SCHÜCO ASS 50
Book an Appointment